Uk Atomic Energy Authority
class="gem-c-govspeak govuk-govspeak gem-c-govspeak--direction-ltr govuk-!-margin-bottom-0">
The UK Atomic Energy Authority (UKAEA)s 200 million Lithium Breeding Tritium Innovation (LIBRTI) programme has announced a series of significant steps to advance fusion energy development.
The announcement aligns with the UKs Department for Energy and Net Zeros recent support for the nations fusion programme and budget plans for 2025/2026.
Part of the broader Fusion Futures initiative, LIBRTI focuses on pioneering fusion fuel advancements and stimulating general industry capacity through international collaboration.
Over its four-year span, the programme aims to demonstrate controlled tritium breeding, a critical step for future fusion power plants.
As part of this effort, UKAEA intends to purchase a neutron source which will form the backbone of a first-of-a-kind testbed facility to be built at Culham Campus in Oxfordshire.
UKAEA will also provide 9 million funding for 12 small-scale tritium breeding and digital simulation experiments.
Future fusion power plants will rely on two hydrogen isotopes deuterium and tritium to produce energy. Deuterium can be readily extracted from seawater. Tritium, however, is scarce in supply, necessitating the development of methods to produce it sustainably.
To address this challenge, tritium must be produced (or bred) in a lithium-containing blanket that surrounds the fusion reaction. This breeder blanket will perform several tasks:
- Tritium production: React with high-energy neutrons produced during fusion to generate tritium
- Heat absorption: Capturing the immense heat generated by fusion reactions for energy conversion
- Act as a shield: Protecting the machines components from radiation damage.
By ensuring a continuous supply of tritium for the fusion machines operations, the breeder blanket enables a self-sustaining fuel cycle.
The neutron source
SHINE Technologies, USA, is expected to deliver a 14 mega electron volt (MeV) deuterium-tritium fusion system to provide the LIBRTI neutron source in 2027.
John Norton, LIBRTI Director at UKAEA, explains, The neutron source selected shall provide neutrons of the same energy as those emitted from a fusion machine, enabling LIBRTI to experiment with a wide range of materials and engineering configurations to shape and advance the breeding models required for next step blanket designs.
Greg Piefer, CEO of SHINE Technologies, said, Our partnership with UKAEAs LIBRTI program is a key milestone for fusion energy. Today, our systems are already achieving up to 50 trillion fusion reactions per second, which makes them the worlds brightest steady-state deuterium-tritium neutron sources. These fusion spectrum neutrons are essential to validate tritium breeding materials critical for scalable fusion energy systems. Were excited to work with UKAEA to develop next-generation fusion solutions to help pave the way to clean, abundant energy.

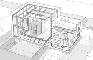
The LIBRTI facility illustration with labels - Image Credit: United Kingdom Atomic Energy Authority
The 12 small-scale experiments
Each of the 12 experimental and digital projects is expected to run to March 2026.
Outcomes are expected to include new tritium transport models, the development of novel breeder materials and diagnostics, and digital platforms for the testbed facility.
The 12 winning bids in the LIBRTI procurement call are as follows:
| Project name | Lead Organisation |
|---|---|
| Development of a Liquid Lithium Digital Twin | Amentum Clean Energy Limited |
| Studying the adequacy of 6LiD as a solid breeder material | Astral Neutronics Ltd |
| TRIMAX (Tritium reactor integrated analysis experiment, multiphysics code) | Bangor University - Nuclear Futures Institute |
| Correlation of scaled mock-ups to full-scale using multiphysics | IDOM UK Limited |
| TRI-PRISM (tritium permeation real-time in-line sensor for monitoring) | Kyoto Fusioneering |
| TriBreed (using High Flux neutron source facility at the University of Birmingham) | Lancaster University |
| Breeder Agnostic Tritium Inventory Digital Twin System | Materials, University of Manchester |
| Develop openTBB (Tritium Breeding Blanket) - multiphysics transport simulation | US university |
| VICE (Quantification of uncertainties in tritium breeding in ceramics, manufacturing and testing) | Oxford Sigma |
| Experimental programme including lithium impurity control, diagnostics and irradiation testing | Tokamak Energy |
| Develop a small solid lithium ceramic breeder with in-line tritium detection capability for calibrated neutron sources | University of Birmingham |
| Tritium breeding in FLiBe | University of Edinburgh |
Organisations also included in these projects are Canadian Nuclear Laboratories, Commonwealth Fusion Systems, DigiLab, ENI, University of Bristol, University of Cambridge University of California Berkeley, University of Illinois Urbana and University of Oxford.
The digital platform
A comprehensive digital strategy for the programme has been developed. The resultant digital platform includes a Building Information Management (BIM) System that will work in tandem with a multi-physics simulation model.
This digital platform will enable the programme to replicate performance and ensure accurate modelling and optimisation for future designs of tritium breeder blanket systems.
Amanda Quadling, Executive Director for Fusion Fundamental Research and Materials Science at UKAEA, and Senior Responsible Owner for LIBRTI, concluded: We aim to move from a science experiment to providing the supply chain with the confidence needed to support future fusion power plants. The engineering scale experimental results combined with a robust digital platform offer powerful ways to design and substantiate future breeder systems for industrial use.
To find out more about LIBRTI at UKAEA, visit: https
